Описание
Техническая документация
Доставка и оплата
Описание
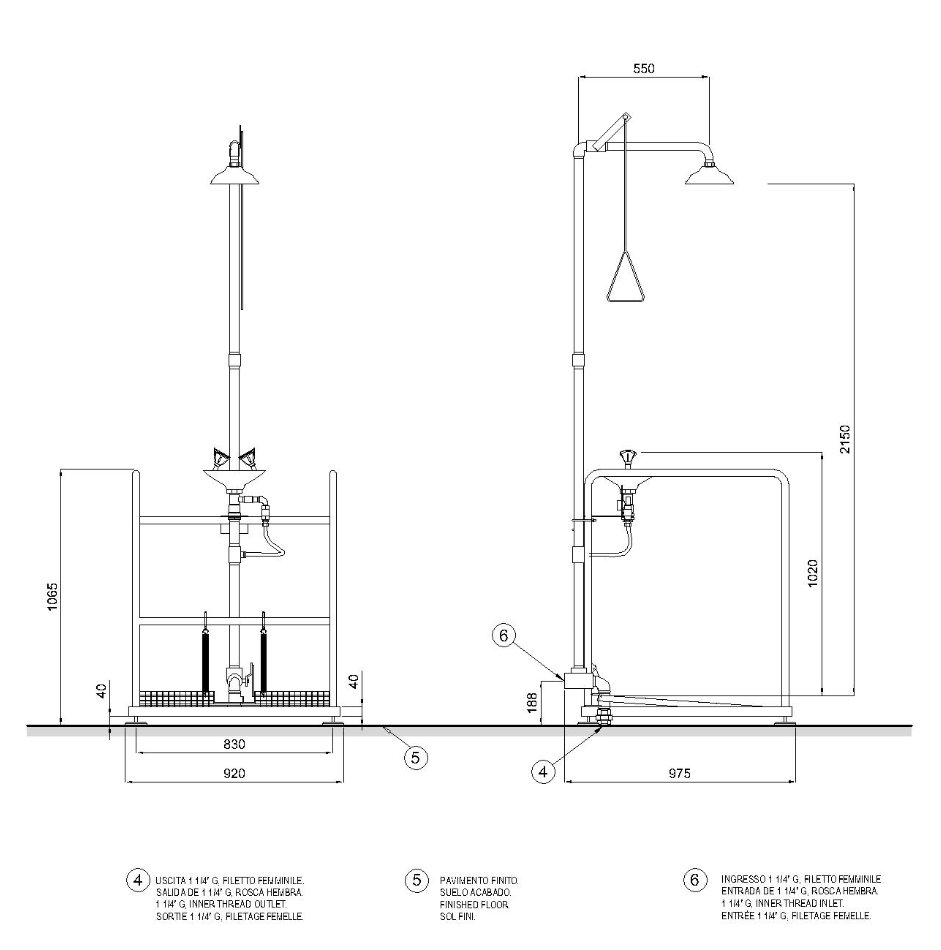
Комбинированная система душ и умывальник для промывки глаз с газированной водой.
Включение душа треугольная ручка
Включение раковины рычаг и педаль.
Материал раковины полипропилен
Техническая документация
Доставка и оплата
Доставка юридическим лицам по г.Москва при заказе от 5000 рублей - бесплатно, отправка в регионы за счет получателя. До любой транспортной компании доставим бесплатно.
Оплата для юридических лиц производится по безналичному расчету, все счета выставляются с НДС. Физические лица могут приобрести товар за наличный и безналичный расчет ( в т.ч. карты VISA, Mastercard, МИР) у наших дилеров.
